NEW TWO-STOREY THREE-ROOM APARTMENTS WITH PRIVATE GARDEN

NEW TWO-STOREY THREE-ROOM APARTMENTS WITH PRIVATE GARDEN

for sale
Nuvolento - via borzolo
259,000 €
Apartment
Category
105
m2
2
Bedrooms
2
Bathrooms
2
Car places
259,000 €
Price
Description
NEW TWO-STOREY THREE-ROOM APARTMENTS WITH PRIVATE GARDEN

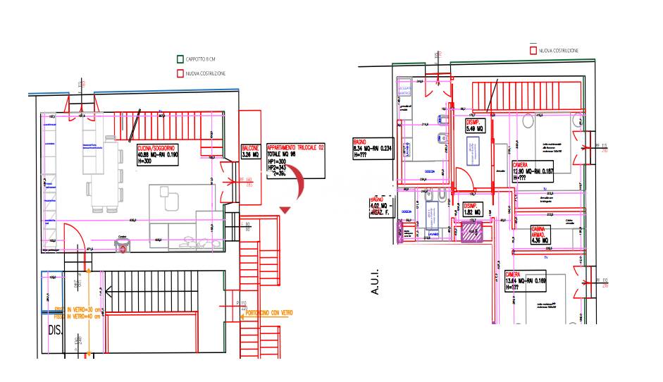
NUVOLENTO - In a renovated historic building, two newly built duplex apartments are available with high-quality customisable finishes. On the first floor, there is a large 40 m² living area with provision for a guest bathroom and an open staircase leading to the sleeping area, which consists of two double bedrooms and a bathroom with a window. The properties are completed by two covered parking spaces and a 50 m² private garden for each unit.

€259,000.00

Agent: Aurora Guerra +39 348 533 2031.

In the municipality of Nuvolento, convenient to all major services, we offer for sale two newly built class A duplex apartments with high-quality customisable finishes, exposed beams, underfloor heating, rock wool and double-layer thermal insulation, PVC double-glazed windows, provision for air conditioning and provision for a photovoltaic system.
The properties are located in an old building in which four completely independent units have been created.
The entrances to the flats open onto the first floor onto a large 40 m² open-plan living area with provision for a bathroom under the stairs and a private balcony. On the second floor is the sleeping area, which consists of a large bathroom with a window, a double bedroom and the master bedroom with a walk-in wardrobe.
The properties are completed by two covered parking spaces and a 50 m² garden for each property.

aurora.guerra@studiofrugoni.it
‪www.studiofrugoni.it‬.
Primal Features
Code:
VAG81
City:
Nuvolento
Category:
Apartment
Locals:
3
Bedrooms:
2
Bathrooms:
2
Sqm:
105
Car places:
2
Balconies:
1
Energetic class:
Under evaluation
Property Conditions:
New
Rank:
Elegant
Position:
Center
View:
Open View
Orientation:
South
Free Sides:
2
Garden:
No
Type living:
Living room
Kitchen:
View Kitchen
Heating:
Independent
Heating Type:
Boiler
Type of heating system:
Floor heating
Energy source:
Natural Gas Heating
Hot Water:
Independent
Cooling:
Split
Fixtures:
PVC double glazed
Doors:
New
Accessories
Air Conditioning
Double Glazing
Passing Car
Map
We also recommend
for Sale
SPACIOUS TWO-ROOM APARTMENTS WITH LOFT AND PRIVATE GARDEN
SPACIOUS TWO-ROOM APARTMENTS WITH LOFT AND PRIV...
159,000 €
Apartment
Nuvolento
75
m2
1
Bedrooms
1
Bathrooms
Information request
Send
Sales agents
Qr Code
Cookie preference